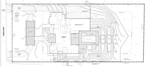
Prime Brentwood location! Top Rated Schools. Fabulous community. Right off Concord and 65. Neighborhood leads straight to interstate so you don't have to fight Concord traffic. Best street in the neighborhood. On culdesac directly behind Brentwood Library. Greenway starts at culdesac and is walkable (5min) to library, (10 min) to Lipscomb Elementary School, Civitan and River Park , (15 min) to the Y and the Williamson County Indoor Sports Complex. Bikeable (15 min) to Crockett Park, Smith Park, and Tower Park. Teardown has been completed, silt fence in place, not in flood zone, survey in attachments, custom plans available for lot with renderings in photos, gorgeous site plan in photos. Video in links. This lot is ready to go!

Listing Tools

Property Details

Exterior Features

Community

Other Details

Map Location

Listed by Benchmark Realty,LLC

Listing Sold by Partners Real Estate, LLC

 Listings courtesy of Realtracs as distributed by MLS GRID. Based on information submitted to the MLS GRID as of December 8, 2025 11:57 PM EST. All data is obtained from various sources and may not have been verified by broker or MLS GRID. Supplied Open House Information is subject to change without notice. All information should be independently reviewed and verified for accuracy. Properties may or may not be listed by the office/agent presenting the information. IDX information is provided exclusively for consumers’ personal noncommercial use and may not be used for any purpose other than to identify prospective properties consumers may be interested in purchasing. The data is deemed reliable but is not guaranteed by MLS GRID. The use of the MLS GRID Data may be subject to an end user license agreement.

Hi there! How can we help you?

Contact us using the form below or give us a call.

Send Us A Message:

I agree to be contacted by the Benchmark Realty, LLC via call, email, and text. To opt out, you can reply 'stop' at any time or click the unsubscribe link in the emails. Message and data rates may apply. For more information read our Privacy Policy.

Do not fill in this field:

This site is protected by reCAPTCHA and the Google Privacy Policy and Terms of Service apply.

Hi there! How can we help you?

Contact us using the form below or give us a call.

Send Us A Message:

Do not fill in this field:

This site is protected by reCAPTCHA and the Google Privacy Policy and Terms of Service apply.

Hi there! How can we help you?

Contact us using the form below or give us a call.

Send Us A Message:

Do not fill in this field:

This site is protected by reCAPTCHA and the Google Privacy Policy and Terms of Service apply.

Do not fill in this field:

This site is protected by reCAPTCHA and the Google Privacy Policy and Terms of Service apply.

Do not fill in this field:

This site is protected by reCAPTCHA and the Google Privacy Policy and Terms of Service apply.

Do not fill in this field:

This site is protected by reCAPTCHA and the Google Privacy Policy and Terms of Service apply.

$

Do not fill in this field:

This site is protected by reCAPTCHA and the Google Privacy Policy and Terms of Service apply.