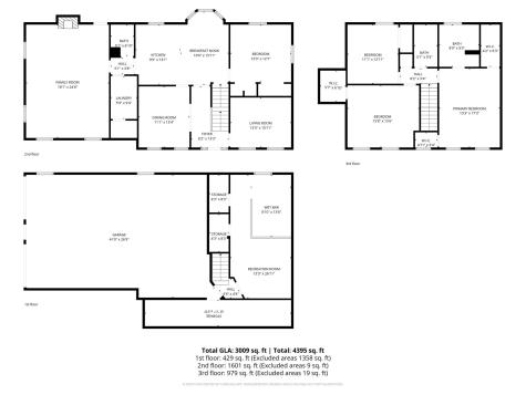
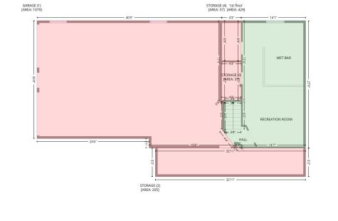
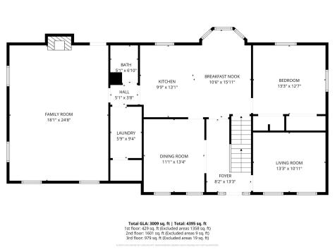
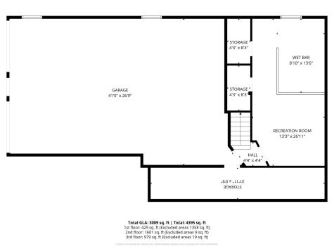
Original Custom Builder's home for Riverview with all the extras including built-ins throughout. Loved and cared for . This is the first time on the market. Well Maintained solid home with 1661 sq. ft. in basement garage could hold 4 cars or boat storage. 429 sq.ft. Finished Man Cave with 2 desk for Hobby Room or use for Home school projects or studio or Home Office Two driveways for ample parking. Covered Front Porch, Large eat in kitchen with bay window, Gas stove, Walk-In pantry. New carpet in Huge Den on Main with Electric Fireplace / Bricked. New Storm door going to Oversized private back deck, New HVAC Dual 2nd floor is Electric 2020, New Gas HVAC 11/2024, Both Units Serviced twice per year. Large Master up with Double Vanity and Jacuzzi Tub w/ Separate shower. 2 walk in closets, Skylight in 2nd Full Bath. Fresh Paint inside 2026! New Water Heater 2021, New Stove Hood 3/31/2022, Outside Painted 3/29/2022. AC in Basement added 11/11/22. Clean and Ready for Immediate Occupancy. Great location close to I-65, Restaurants, Home Depot, Publix, Bathrooms and Kitchen needs some updating and this will be your forever home. Zoned for FRANKLIN SPECIAL SCHOOL DISTRICT! Big house for the money! Rare opportunity, Immediate occupancy!

Listing Tools

Property Details

Interior Features

Exterior Features

Utilities and Appliances

Community

Other Details

Map Location

Listed by Benchmark Realty,LLC

Listing Sold by Compass RE

 Listings courtesy of Realtracs as distributed by MLS GRID. Based on information submitted to the MLS GRID as of March 15, 2026 11:57 PM EDT. All data is obtained from various sources and may not have been verified by broker or MLS GRID. Supplied Open House Information is subject to change without notice. All information should be independently reviewed and verified for accuracy. Properties may or may not be listed by the office/agent presenting the information. IDX information is provided exclusively for consumers’ personal noncommercial use and may not be used for any purpose other than to identify prospective properties consumers may be interested in purchasing. The data is deemed reliable but is not guaranteed by MLS GRID. The use of the MLS GRID Data may be subject to an end user license agreement.

Hi there! How can we help you?

Contact us using the form below or give us a call.

Send Us A Message:

I agree to be contacted by the Benchmark Realty, LLC via call, email, and text. To opt out, you can reply 'stop' at any time or click the unsubscribe link in the emails. Message and data rates may apply. For more information read our Privacy Policy.

Do not fill in this field:

This site is protected by reCAPTCHA and the Google Privacy Policy and Terms of Service apply.

Hi there! How can we help you?

Contact us using the form below or give us a call.

Send Us A Message:

Do not fill in this field:

This site is protected by reCAPTCHA and the Google Privacy Policy and Terms of Service apply.

Hi there! How can we help you?

Contact us using the form below or give us a call.

Send Us A Message:

Do not fill in this field:

This site is protected by reCAPTCHA and the Google Privacy Policy and Terms of Service apply.

Do not fill in this field:

This site is protected by reCAPTCHA and the Google Privacy Policy and Terms of Service apply.

Do not fill in this field:

This site is protected by reCAPTCHA and the Google Privacy Policy and Terms of Service apply.

Do not fill in this field:

This site is protected by reCAPTCHA and the Google Privacy Policy and Terms of Service apply.

$

Do not fill in this field:

This site is protected by reCAPTCHA and the Google Privacy Policy and Terms of Service apply.