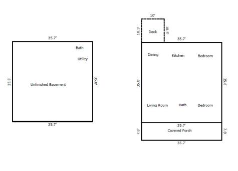
Open House CANCELED Sunday. We're under contract, but keep your eye on it. We'll know by August 1st! Your chance to own this beautiful single family, stone & log constructed home w/ over 1,200 sq, ft. on main level, & 1,100 sq. ft. of unfinished basement space the current owner is using as the owner's suite. On 5 acres w/ additional potential home sites, live in current home while building another home for additional residence, or future magnificent dream home. The drive to this location is one of the most beautiful, convenient to Portland, Gallatin, and downtown Westoreland, drive through tree lined streets in area with several large tracts; you're almost home. Pond in the front is perfect!! Design & develop it with your own creative vision. Large stone fireplace is beautiful, several types of trees and foilage, including two Japenese maples at front of home. Golden Bamboo is nearby if you wish to propagate it. Enjoy it all from the large covered front porch on the porch swing.

Listing Tools

Property Details

Interior Features

Exterior Features

Community

Other Details

Map Location

Listed by eXp Realty

Listing Sold by Clarksville

 Listings courtesy of Realtracs as distributed by MLS GRID. Based on information submitted to the MLS GRID as of December 8, 2025 10:55 PM EST. All data is obtained from various sources and may not have been verified by broker or MLS GRID. Supplied Open House Information is subject to change without notice. All information should be independently reviewed and verified for accuracy. Properties may or may not be listed by the office/agent presenting the information. IDX information is provided exclusively for consumers’ personal noncommercial use and may not be used for any purpose other than to identify prospective properties consumers may be interested in purchasing. The data is deemed reliable but is not guaranteed by MLS GRID. The use of the MLS GRID Data may be subject to an end user license agreement.

Hi there! How can we help you?

Contact us using the form below or give us a call.

Send Us A Message:

I agree to be contacted by the Benchmark Realty, LLC via call, email, and text. To opt out, you can reply 'stop' at any time or click the unsubscribe link in the emails. Message and data rates may apply. For more information read our Privacy Policy.

Do not fill in this field:

This site is protected by reCAPTCHA and the Google Privacy Policy and Terms of Service apply.

Hi there! How can we help you?

Contact us using the form below or give us a call.

Send Us A Message:

Do not fill in this field:

This site is protected by reCAPTCHA and the Google Privacy Policy and Terms of Service apply.

Hi there! How can we help you?

Contact us using the form below or give us a call.

Send Us A Message:

Do not fill in this field:

This site is protected by reCAPTCHA and the Google Privacy Policy and Terms of Service apply.

Do not fill in this field:

This site is protected by reCAPTCHA and the Google Privacy Policy and Terms of Service apply.

Do not fill in this field:

This site is protected by reCAPTCHA and the Google Privacy Policy and Terms of Service apply.

Do not fill in this field:

This site is protected by reCAPTCHA and the Google Privacy Policy and Terms of Service apply.

$

Do not fill in this field:

This site is protected by reCAPTCHA and the Google Privacy Policy and Terms of Service apply.